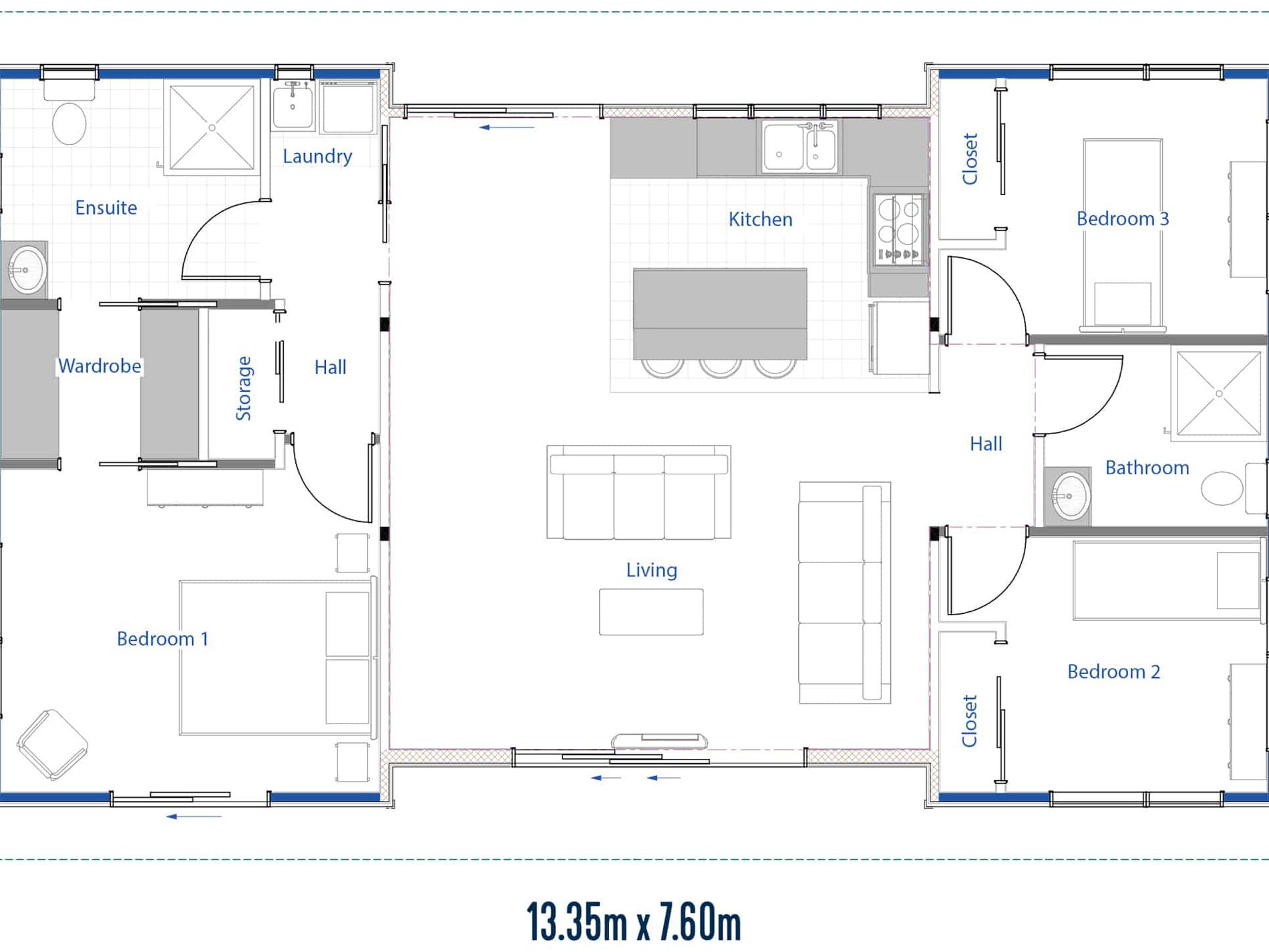
This impeccably positioned five year old Kynoch-designed and built residence offers the perfect combination of convenience and tranquility, located just moments from the beach and local café. The three-bedroom, two-bathroom home presents an ideal option as either a weekend retreat or a permanent residence, with the potential to purchase furnished by negotiation. Set on a substantial 809sqm section, this property provides ample room for future development, including existing plans for a spacious boat shed, which are available for your convenience and could result in significant savings. Each of the three well-appointed bedrooms ensures comfort for family and guests, while the master suite features a private ensuite, delivering a serene personal retreat. Enjoy mornings and evenings listening to the waves from the expansive deck or take advantage of the extensive outdoor space for activities such as beach walks, lawn games, or entertaining with friends and family. Situated in highly sought after Dustin Street @ Foxton Beach, the property is conveniently close to the Beach,local cafes, shops, and amenities, with easy access to Foxton town centre and Palmerston North. This is a rare opportunity to secure a quality coastal property at 6 Dustin Street, Foxton Beach. For further information or to arrange a viewing, please contact us today.
- Air Conditioning
- Deck
- Fully Fenced
- Outdoor Entertainment Area
- Shed
- Dishwasher




















































1